
Жилой дом House in Fukawa от Suppose Design Office в Японии
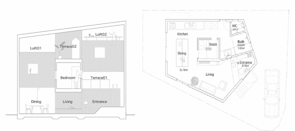
House in Fukawa – жилой дом, построенный в пригороде Хиросимы.Здание представляет собой минималистскую структуру с центральной лестницей, ведущей к хаотично расположенным деревянным объемам - отдельным помещениям и платформам.

Жилой дом House in Fukawa от Suppose Design Office в Японии
Этот деревянный «лабиринт» призван потакать чувству собственности своих обитателей, создавая не просто комнаты в общем доме, а отдельные «домики» в едином объеме, занимающем участок площадью 114,27 квадратных метров.

Жилой дом House in Fukawa от Suppose Design Office в Японии
Необычный дом был построен в мае 2010-го года для супружеской пары с двумя детьми. Как уже было сказано, помещения, к которым ведет центральная лестница, являющаяся «осью» дома, размещены хаотично, на различных уровнях и под различными углами, таким образом, как будто обитатели дома проживают в кроне ветвистого дерева, каждый на своей собственной ветке.

Жилой дом House in Fukawa от Suppose Design Office в Японии
Между помещениями существуют пространственные взаимосвязи, такие как комната-комната, комната-терраса, терраса-балкон.

Жилой дом House in Fukawa от Suppose Design Office в Японии
Несмотря на то, что дом изолирован от внешней среды, да и внутри существует явный территориальный раздел, обитатели необычного жилья чувствуют единую, индивидуальную атмосферу, комфорт «большого дерева», наполненного воздухом и достаточным количеством дневного света.

Жилой дом House in Fukawa от Suppose Design Office в Японии
Материалы, использованные при отделке дома – дерево хвойных пород, фанера, экологически чистые эмали, воск.

Жилой дом House in Fukawa от Suppose Design Office в Японии
С творчеством авторов проекта можно познакомиться. Посетив официальный сайт их архитектурной студии:












































